全案定制 · 大宅家裝
個性化定制 · 生活不將就
淘金山湖景花園張姐說:
很多人來家后都很喜歡這種設計風格~~感謝陳工的精心設計才有了如此的效果

“客戶滿意是唯一衡量標淮”。只有好的設計、好的品質、好的服務才能收獲到業主的滿意和稱贊。
—— 案例分享 ——
業主是一位深受中國傳統文化影響的人,對中式的裝修風格有著無法割舍的偏愛,喜收藏,愛喝茶,骨子里透著濃濃的東方文化氣息,設計師在與業主的淺聊細聽中獲取關鍵述求,并在后續的設計中融入古典中式元素,門庭窗格,香木桌邊,濃墨重彩的中式寫意,靈感在平層空間里清晰自來。
項目地址:淘金山湖景花園
項目面積:190平
戶型結構:4房2廳2衛
項目風格:中式
設 計 師:陳娜

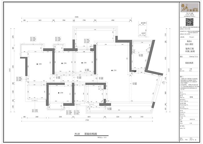
▲原始結構圖

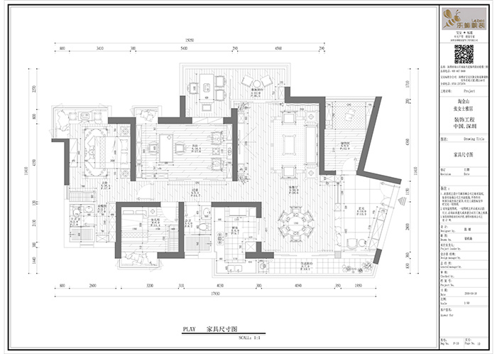
▲平面布置圖
客餐廳全景效果圖▼

實景拍攝
玄關▼
造型鮮明的月亮門與簡約中式雕花窗隔斷,成為了入戶玄關的亮點,
餐廳的風水也是盡收眼底,
原木色在灰白地磚映襯下,十足出彩,
配以桌案地柜,業主的青瓷寶器點綴,濃濃的文化氣息撲面而來,
傳遞出沉穩、厚重的世家之風。


餐廳▼
入戶餐廳采用圓形吊頂,
方圓之美既是傳統的傳承。

客廳▼
廳堂間,茶韻滿格
設計師將客廳與陽臺之間的墻面另辟茶盞藏品收納墻,
這里既展示主人的品茶與愛茶之道,
也是對流光歲月、變幻世事的深厚沉淀。

書房▼
長條桌案,筆墨書香,古琴音韻。


主臥▼
主臥古典家具沉穩的木色厚重卻不奢華,大氣又不失典雅。


休閑茶藝間▼
幾杯清茶,一抹綠植
憑借著木頭的溫潤質感,茶室有一種獨特而儒雅的氣質,
設計師將陽臺巧改茶藝間,業主約三兩好友,品茶觀景,豈不美哉!

設計師陳娜和屋主于老師合影▼

中式大宅,和韻相生。設計師用傳統家居元素、現代表現手法提煉、整合空間,向傳統生活方式的唯美致敬,在當代生活中重新尋找傳統大宅府邸居住空間的氣勢之美、禮儀之美、舒適之美、雅致之美,從中延續傳統意義的價值與觀念。
樂蜂精裝,值得信賴的裝修品牌。為業主提供高品質,有保障的裝修服務,最終讓客戶滿意,是我們一直在做的。
選擇樂蜂,裝的滿意,住的放心!
個性化定制 · 生活不將就


數據預算由樂蜂裝飾集團歷史交付10萬+業主裝修數據
各個小區的簽單合同數據經過大數據實時分析計算