全案定制 · 大宅家裝
個性化定制 · 生活不將就
生活喜歡簡單的人,現代風格自然成為了首選,更是初心。很多人在裝修前會了解到多種風格的家裝案例,依然不為其他風格所動。這就是現代風格的魅力,不矯揉造作,也不虛張聲勢。

8月實景人氣案例
8月酷暑難耐,業主們期待家的熱情絲毫不減,一起來看看八月這5套人氣案例吧~
TOP 5
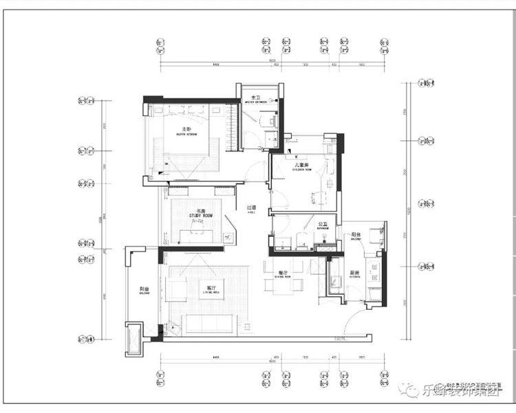
79㎡兩室兩廳

工程造價:10萬
項目地址:深圳-壹城中心
設計風格:現代簡約風
設計師:楊慧
上榜理由:放大了材質本身的色彩與質感,用簡單延展著生命力的精致與情調;舉手投足間釋放的勵志青春與生命力充滿感動。

本案的戶型原有的客廳面積過窄,通風不足,影響采光,拆掉多余隔墻,擴大客廳面積,其次、空間劃分過多,導致各個區域小而窄;規劃設計后,將多個小空間打通,空間更通透。

推門而入,一個小小的走廊過道,延伸空間保護家的隱私。過道處設計儲物柜,下方留出空隙可以擺放鞋子,簡單實用。


客廳與餐廳開放式布局,讓家的動線更靈活,落地窗滿足了對通風與采光的需求。嵌入式電視柜設計精致美觀,C位出道;黑白圓形輕奢茶幾提升家的氣質,電視墻做了壁龕設計,平日里可做簡單的收納空間。


嵌入式冰箱節省空間,整體素白色調呈現優雅的用餐環境。

主臥以白色為基礎色調,木色、灰色、粉色加以輔助修飾,溫婉格調,頗具優雅。

步入式衣帽間,打造白色組合衣柜,試問哪個女主人不愛呢?

次臥把飄窗部分拆除,替換成榻榻米,合理補足次臥空間窄小的缺點。

洗衣機嵌入陽臺的位置剛好,上方設計洗手臺,可洗漱方便洗衣。
TOP 4
125㎡三室兩廳

工程造價:15萬
項目地址:香山美墅
設計風格:現代極簡
項目戶型:125㎡三室兩廳
項目團隊:樂蜂裝飾集團
上榜理由:最in新中產的裝飾新風尚,黑白灰極簡色調,高級的質感讓年輕人難以抗拒。

本案是一對年輕的夫婦,對黑白灰情有獨鐘,對功能性和生活品質有著極高的要求。


全屋沒有過多繁雜的修飾,反而能讓浮躁的心沉靜下來。整體以黑、白、灰、三色調的融合流暢高級。


原有的公共空間改為餐廳,客餐廳一體設計使空間更為大氣。


黑色單面背景墻的設計格調,搭配可溫度感應的藝術吊燈,簡約功能性完善,很符合屋主的調性。


櫥柜、衛生間手臺、增加黑色邊框,提升空間體積感與高級感。
TOP 3
108平三室兩廳

工程造價:12萬
項目地址:財富城
設計風格:現代簡約
項目戶型:108㎡三室兩廳
設計師:呂偉強
上榜理由:空間感明亮,實用性強,暖色配色為主使得空間簡約溫馨;人一輩子活得最真實才是最幸福的。

本案是一個三口之家,女主喜歡簡約,男主喜歡深沉穩重,設計師透過二人的需求進行巧妙融合,營造一個簡單大氣的舒適環境。

推門而入,新規劃入戶玄關處的半墻柜體,不僅完整玄關收納,又阻隔餐廳視覺,保護隱私,防止用餐尷尬。

U型大理石櫥柜設計,廚房雖小,動線最短,方便下廚。

主臥采用高級灰與粉的搭配,呈現一個溫馨自然的家居空間。

衛生間四大件已備齊,由于采光通風效果佳,為了保證空間流通性,不做干濕分離區也是可以的。
TOP 2
156㎡四室兩廳一廚三衛

工程造價:16萬
項目地址:陽光粵海
設計風格:現代風格
設計師:周志飛
上榜理由:深圳南山中心地帶,站在40多層的陽臺看下去,整個南山盡收眼底,完美的戶型結構,空間上設計師的構想游刃有余。

屋主有著一個六口之家,父母、太太、兩個小孩;喜歡設計簡約,要求保留原戶型,既把整個宅體詮釋的大氣優雅,又滿足生活上的住宅需求。

走進入戶玄關,側面墻體到頂的鞋柜,暗藏燈帶的設計使空間更為曠闊,米灰色的鞋柜鑲嵌深色的開放柜,大大增加了空間活躍度。對面全身鏡屏風的設計,既可以增加空間開闊度,也方便屋主出門整理,還能做大沙發背景,擴展沙發的容納量,一舉四得。

西廚墻面部分采用淺色大理石,增加視覺觀感;西廚櫥柜采用上下分色設計,空間層次感提升。地磚材質及尺寸的運用上,設計師用長條形大磚,加大客餐廳的進深。不銹鋼線條+簡約硬包背景+大面積無主燈設計平頂,空間看起來更大氣。

書房空間不大,設計師將書柜書架柜門都做成透明玻璃,配以暗藏的燈光,增加空間感,也讓空間更顯高級敞亮。


睡眠區暖色系的硬裝+深色軟裝,提升整體色彩飽和度和層次感。由于屋主小女兒喜歡粉色,我們把粉色與白色融合進去,裝扮一個公主少女粉的甜蜜空間。

TOP 1
150㎡四室兩廳

工程造價:25萬
項目地址:前海丹華
設計風格:現代風格
項目戶型:150㎡四室兩廳
設計師:李可非
上榜理由:整體設計因地制宜,取材源于大自然,秉承“返璞歸真”的理念,將“木”“石”貫穿始終,顯得很有親近感、質樸感。

本案女業主是一名軟裝設計公司老板,也是一名時尚界達人、某網絡平臺紅人。在軟裝設計搭配上,都有著自己的理念巧思在其中,一起來品鑒。


從客餐廳陳設中可以看出屋主的書籍很多,沙發背景墻巧用虛實、隱形、相貫的設計手法,解決了大量藏書的收納難題,弱化了書柜的功能,兼具展示,立顯空間靈動性,毫無壓迫感。
餐廳背景利用光線讓整體視覺更具穿透力,展現出材質的純粹與肌理。大理石與金色木飾面營造相融共生的視覺觀感,弱化玄關的縱深,提升空間與空間的延伸感。

廚房內的免漆板櫥柜不僅觸感光滑舒適,也好打理;在燈光聚焦下,散發的煙火氣也高級特別了些。


看了女主人的主臥細節,創意單椅沙發、藝術梳妝柜、豹紋床品等等,滿目琳瑯的軟飾,每個角落都可以訴說一個精彩故事。不愧是軟裝設計公司老板,會不會和小編一樣好奇,這些都在哪里買呢?

兒童房內擺放著兩張相同的單人床,一旁添置衣柜,尺寸剛好,像一張色彩繽紛的調色板來描繪著孩子童真的空間。

把原有的次臥替換掉了孩子學習間,讓孩子可以盡情快樂學習,成長。


個性化定制 · 生活不將就


數據預算由樂蜂裝飾集團歷史交付10萬+業主裝修數據
各個小區的簽單合同數據經過大數據實時分析計算