深業東嶺裝修案例|
100㎡
3房2廳
現代簡約風格
裝修實景圖
來源: 樂蜂裝飾
瀏覽人數:
次
更新時間:2021-09-04 10:32:52
| 樓盤名稱:深業東嶺 |
案例戶型:3房2廳 |
案例面積:100平米 |
| 案例風格:現代簡約 |
設計師:梁鵬 |
服務店面:
設計院
|
設計理念
設計大氣,時尚,前衛,優雅,給人溫暖舒適的感覺。與每個人都熟悉的現代風格相比,它具有更多的品質和設計感;它揭示了生活的純潔與純潔,它融合了奢華與內涵的氣質。

玄關實景圖
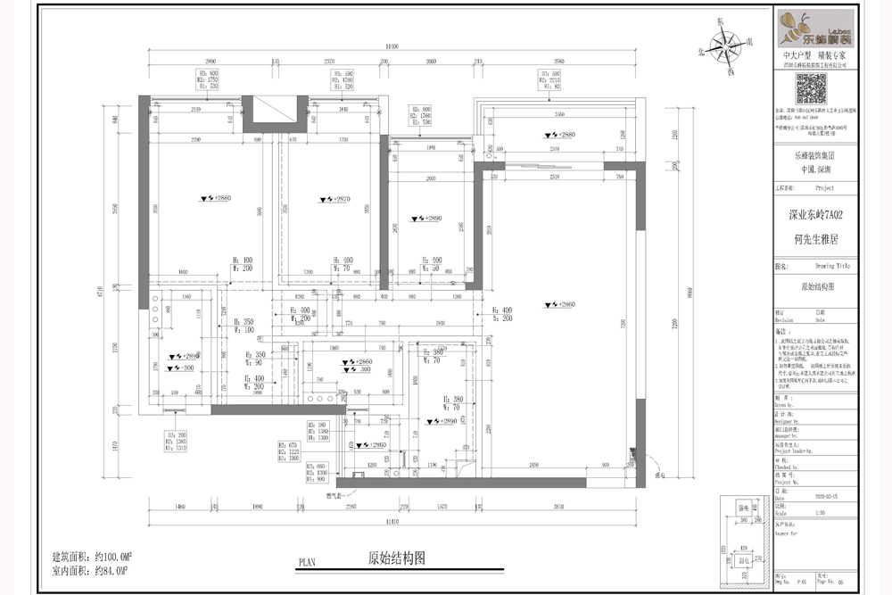
原始戶型有一些不足
客餐廳雖然方正,但是廚房空間比較不好使用,生活陽臺空間狹小,難以做合理利用,主臥衣帽間有太過雞肋,空間布置不合理
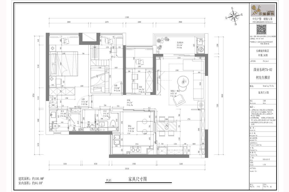
在設計過后,我們有了比較合理的方案,在門后設置整排的鞋柜和餐邊柜,將廚房和生活陽臺空間進行整合,兩個衛生間的面積進行重新分配,都做出干濕分離的結構

玄關實景圖
原始戶型有一些不足
客餐廳雖然方正,但是廚房空間比較不好使用,生活陽臺空間狹小,難以做合理利用,主臥衣帽間有太過雞肋,空間布置不合理
在設計過后,我們有了比較合理的方案,在門后設置整排的鞋柜和餐邊柜,將廚房和生活陽臺空間進行整合,兩個衛生間的面積進行重新分配,都做出干濕分離的結構

客廳實景圖
客廳整體采用黑白灰色調的設計,頂面采用無主燈吊頂,通過軌道射燈暗裝筒燈和暗藏燈帶的照明來營造氛圍。
地面瓷磚的反光度介于亮光和啞光之間,在有質感的同時也不影響室內的采光,整體給人一種高級感。
整體客餐廳在方正的同時也不失空間感,通過貫穿其中的暗藏燈帶和被拉長的空調出風口制造出整個空間的延伸感

客廳實景圖
客廳整體采用黑白灰色調的設計,頂面采用無主燈吊頂,通過軌道射燈暗裝筒燈和暗藏燈帶的照明來營造氛圍。
地面瓷磚的反光度介于亮光和啞光之間,在有質感的同時也不影響室內的采光,整體給人一種高級感。
整體客餐廳在方正的同時也不失空間感,通過貫穿其中的暗藏燈帶和被拉長的空調出風口制造出整個空間的延伸感

客廳實景圖
客廳整體采用黑白灰色調的設計,頂面采用無主燈吊頂,通過軌道射燈暗裝筒燈和暗藏燈帶的照明來營造氛圍。
地面瓷磚的反光度介于亮光和啞光之間,在有質感的同時也不影響室內的采光,整體給人一種高級感。
整體客餐廳在方正的同時也不失空間感,通過貫穿其中的暗藏燈帶和被拉長的空調出風口制造出整個空間的延伸感

餐廳實景圖
中島臺能很好的增加廚房的操作臺面,同樣也可以作為備餐區使用,這里有個小心思,冰箱和餐邊柜定制在一起,這讓空間更加整體統一。
廚房被打開之后,整體客餐廳的視野空間得到補充,T型的過道動線加上廚房的回游動線讓人能在其中暢行無阻。

餐廳實景圖
中島臺能很好的增加廚房的操作臺面,同樣也可以作為備餐區使用,這里有個小心思,冰箱和餐邊柜定制在一起,這讓空間更加整體統一。
廚房被打開之后,整體客餐廳的視野空間得到補充,T型的過道動線加上廚房的回游動線讓人能在其中暢行無阻。

廚房實景圖
餐廳和廚房有比較微妙的空間關系,L形的多聯動推拉門能讓廚房在開放式和封閉式中隨意切換

主臥實景圖
主臥睡眠區的布置比較簡約。接近樹皮色的木地板,能夠很好的烘托整個空間溫馨的氛圍,除了床頭背景墻之外,其他墻面都貼了墻布,好處就是防止墻面被弄臟,也更加耐磨,墻面不會留下瑕疵。

主臥實景圖
主臥睡眠區的布置比較簡約。接近樹皮色的木地板,能夠很好的烘托整個空間溫馨的氛圍,除了床頭背景墻之外,其他墻面都貼了墻布,好處就是防止墻面被弄臟,也更加耐磨,墻面不會留下瑕疵。

主臥實景圖
主臥睡眠區的布置比較簡約。接近樹皮色的木地板,能夠很好的烘托整個空間溫馨的氛圍,除了床頭背景墻之外,其他墻面都貼了墻布,好處就是防止墻面被弄臟,也更加耐磨,墻面不會留下瑕疵。

次臥實景圖
多功能房在滿足日常儲物和客人留宿的同時,還作為屋主臨時辦公的空間,偶爾還能在這里看書或者放松身心打幾局游戲也十分舒適。

兒童房實景圖
兒童房是小女孩的專屬空間,誰說上下床就不能有藝術感,在滿足日常睡眠的同時,小樓梯還能兼具儲物的功能,旁邊定制的衣柜能養成孩子良好的收納習慣。

衛生間實景圖
主臥衛生間在做了干濕分離之外還做了壁掛式的馬桶,能夠隱藏水箱也更加方便打掃,拉長的鏡柜能很大程度增加儲物的空間。
公區的衛生間采用了壁掛式馬桶的設計,在浴室柜的選用上,選擇了耐用性和美觀度更好的巖板浴室柜,水龍頭也提前規劃暗藏并且安裝在墻體里,保持臺面整潔。

衛生間實景圖
主臥衛生間在做了干濕分離之外還做了壁掛式的馬桶,能夠隱藏水箱也更加方便打掃,拉長的鏡柜能很大程度增加儲物的空間。
公區的衛生間采用了壁掛式馬桶的設計,在浴室柜的選用上,選擇了耐用性和美觀度更好的巖板浴室柜,水龍頭也提前規劃暗藏并且安裝在墻體里,保持臺面整潔。

其它實景圖
新家落成啦,和屋主拍張合照吧,裝修過程比較順利,中間也感謝屋主一家的配合,讓設計能夠不斷調整到完美落地!