全案定制 · 大宅家裝
個性化定制 · 生活不將就
本案是一套寶安區金泰花園案例,當原木與灰在空間的碰撞中,家的清新愉悅感不由的散發開來。這樣的裝修設計搭配似乎受到當下更多年輕人的喜好,包括業主趙女士也被俘獲了心。那么究竟它的魅力來源于哪里呢?

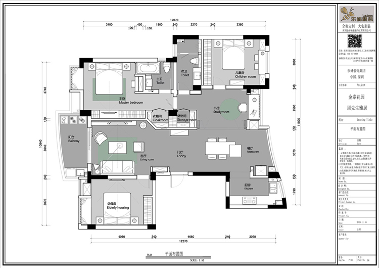
戶型解析:
1. 因為主臥空間足夠,把隔間改成衛生間,方便起居使用。
2. 書房與餐廳空間打通,空間通透大氣。

設計師為了不浪費空間死角處,在玄關旁打造一個玄關柜,底部留出放鞋子的空間。

一進門,正對著簡易小柜子與裝飾物,緩沖家中視覺也豐富了空間層次。

客廳以木質背景墻為基調,灰色來映襯輔助搭配;松軟的皮質沙發提高客廳的格調氣質,藏不住它清新自然、優雅高級的質感。

餐廳處設立的島臺與餐桌完美銜接,吧臺椅賦予餐廳濃濃的情趣韻味,一餐食的精致美味即能帶來無限滿足感。

由于廚房空間不足,把冰箱嵌入在餐廳櫥柜中。不僅省空間還省去餐廚動線。

客餐廳整體采用無主燈設計,線條感輕盈;客廳的采光極好,反射到木質家具的光也分外柔和,想不愛這樣的家都難呢。

廚房簡單整潔的櫥柜給人的視覺感官是舒適的,使用廚房的心情也會不一樣~

主臥的色調素雅清麗,空間毫無壓抑感,給足人的安全感,更容易入眠。衣柜中做了壁龕設計放一些書籍,盆栽,裝飾上更用心,懂得生活。

次臥淡綠色的背景墻決定屋內清新的調性, 兩邊配套的書柜+桌椅的設計尺寸正好容下,設計對稱式書柜是很多人的居家首選哦~

功能區的設計空間沒有一點浪費,由于趙女士喜歡讀書,擁有許多書籍,所以設計師在功能區域選擇原木質的定制書柜,既滿足書籍收納需求,同時也不乏美感。

衛生間四件套齊全,地漏的位置也合理,呈現清爽干凈的浴室空間。
個性化定制 · 生活不將就


數據預算由樂蜂裝飾集團歷史交付10萬+業主裝修數據
各個小區的簽單合同數據經過大數據實時分析計算