全案定制 · 大宅家裝
個性化定制 · 生活不將就

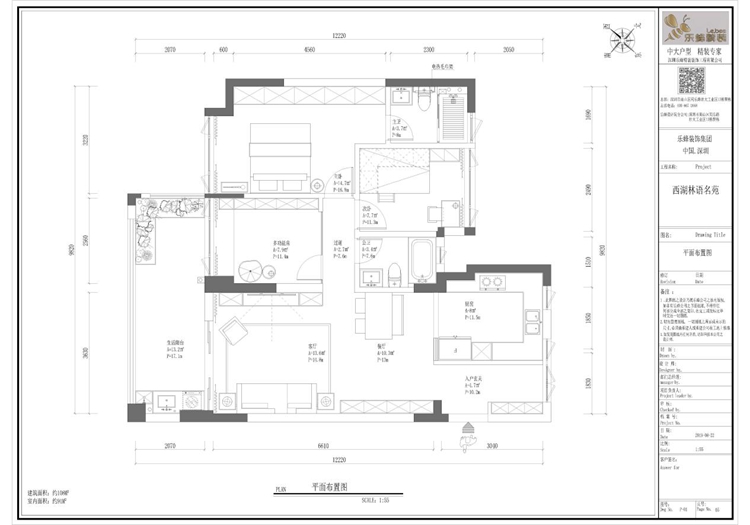
樓盤名稱:西湖林語名苑
面積:108平
戶型結構:三房兩廳兩衛
風格:北歐風格
半包預算:11萬

平面方案圖
設計說明:每個人生活習慣的不同,追求的舒適方式也不一樣。對一個空間的理解,要從居住者的訴求開始。業主喜歡讀書,家里很多書籍,所以想要一個書房。特別對客廳,餐廳,有很高的收納需求。業主喜愛長跑,喜歡自然淳樸的元素;木質的肌理觸感,原木色調的溫馨是本案主要元素。

歲月是有情的,因為我們還能夠感知陽光,細細品味生活。這是一件幸事。落地窗陽臺,伴隨著陽光打在身上,窗外有鳥兒的嬉戲聲,看一本喜愛的書籍。能在這繁雜的都市生活里,偷得浮生半日閑,尋找屬于自己的舒適空間。

棕櫚木質門瞬間把人帶到自然的情境中,開門瞬間,疲憊感減半。進門處的1㎡小空間設計巧思,玄關柜,滿足收納打理的同時也方便出行。

偌大開放式的客餐廳讓視野明亮寬敞的,原木家具搭配白墻分為清新,溫馨。客餐廳整體設計兩組收納柜,相互映襯,視覺平衡,一組完善餐邊柜收納及彌補玄關空間小的遺憾,另一組完善家庭雜物收納,讓空間實用性更高。

設計總要考慮多維度的層面,來平衡家居隱私性、通透性、實用性、以及安全性。

客廳中定制的白色木質儲物柜,不僅可以遮擋客廳部分視線,保護隱私,很細節。

布藝沙發+原木桌椅+清新壁畫,北歐與日系風格的完美結合,不落俗套。幾株綠植點綴,生機盎然,好比一幅畫里的點睛之筆。

工藝上,通向走廊的墻體以“拱形”門形狀,完善整體空間線條柔和度,更耐看。

客廳電視柜采用柜體+格間結構,完善收納力,也不顯擁擠。

客廳是情感交流的集結地,一側擺放小黑板,孩子可以在此盡情玩耍,學習,父母長輩可看電視聊天,圍坐沙發,享受生活中平淡卻不平凡的時光。

小走廊兩側采用玻璃磨砂門,光線充裕也保護空間隱私。


主臥保持與客廳相同的風格,原木與白的經典配色,色調柔和,滿滿的大衣柜全方面做足收納。

孩子需要更多空間學習和玩耍,在兒童房中打造一個上床下柜的柜體樣式。孩子玩具、雜物、衣服,會隨著入住時間等增多累積,更加注重收納需求。

功能間的柜體,將開放式與封閉式結合,開放式柜體區域,可以放書籍、雜物等,封閉式柜體內部安置不常需要的物品;手工制作柜體空間貼合度搞,完善空間收納美學。

設計決定空間的功能,工藝奠定裝修的品質;在本案設計中,設計師從隱私性、實用性、美觀性多維度出發,給空間最完美的暢想;施工者運斤成風,用精湛工藝將理想與現實相融合,打造居住者心中的完美家!
個性化定制 · 生活不將就


數據預算由樂蜂裝飾集團歷史交付10萬+業主裝修數據
各個小區的簽單合同數據經過大數據實時分析計算