全案定制 · 大宅家裝
個性化定制 · 生活不將就
說起閣樓,腦海里浮現的就是狹小悶熱,缺點多多。但是在設計師眼中,一旦合理利用這些“缺點”,就能得到意想不到的效果,讓閣樓變身功能區。

擁有一套帶閣樓的房子是不少人的夢想,
但帶閣樓的頂層房子因空間分布高矮不一,
往往會形成空間死角,
本案就遇到這樣一套奇葩戶型,
而建筑學出身的設計師在本案中,
把建筑美學和設計美學進行融合,
對住宅進行結構重塑、化繁為簡,
打造出“無界”住宅。
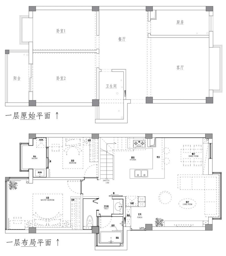
實用面積:83+22=105㎡

一樓設計上,根據業主的居住需求,拆除部分非承重墻,重新布局功能區:
1、廚房改至樓梯下,設為開放式廚房。
2、把餐廳改到原廚房位置,和客廳相連,打造更寬敞的公共空間。
3、拆除陽臺和室內的非承重墻,實現室內擴容。
4、主臥借用部分空間給主衛,實現三分離。

閣樓設計上:
1、把閣樓的一部分改為挑空,增加客廳、餐廳部分的層高,讓空間看起來更開闊。
2、充分利用閣樓上空間死角,可改造成多功能室、收納區,以及光、風通道。


在顏色上,
選用簡潔的黑白灰作為主色調,
增加原木元素,
為住宅增加溫度,
配合綠植、掛畫、暖色布料,
打造出清新自然的居住壞境。

如果你留心,
會發現樓梯、柜門、家電等扶手都隱身了,
屋內家具都簡化為方方正正的立方體,
整體看來和諧統一。
玄關

從入戶大門進來,
首先看到的是白色的頂天立地柜,
這樣既能部分遮擋室內空間,
保留私密性,
又能增加收納空間,
方便出入時取拿物品。
客廳



把原本的飄窗區域打掉,
嵌入定制沙發,
為客廳增加空間的同時,
增加采光性。

靠墻區域定制了一系列收納柜,
為客廳增加了收納空間。

站在閣樓俯視挑空的客廳,
寬敞明亮。
充滿休閑氣息。
餐廳


餐廳選用了木質餐桌和長椅,
為餐廳區域增加了溫暖氣息。

餐廳和客廳間沒有隔斷,
方便客廳餐廳的交流互動,
用餐時也可以看電視。
主臥

主臥巨大的落地窗保證了采光和視野,
床頭的背景墻選用黑色,
家私選用有顏色更深的胡桃木,
整間臥室顯得簡約而不乏質感。

黃銅的五金材料,
為臥室增加了精致感。
廚房

廚房改為開放式,
并做了一圈多功能操作臺,
既可用作操作臺,
又可用作吧臺,
下廚做飯不再覺得局促。

廚房操作臺外立面用水泥灰免漆板裝飾,
亮黑色部分劃分出吧臺區。

外立面暗藏玄機,
一邊的開門式收納柜柜可儲藏食品,
另一邊抽屜式收納柜可收納家電,
平時不常用的電飯煲、高壓鍋等可以完美收納起來。

過道寬留足1.3m。
廚房過道寬達1.3m,
為廚房操作留足空間,
臺面高度符合人體工學,
讓低頭操作時更舒適。
樓梯

樓梯藏在廚房后面,
隔墻上的鏤空三角造型,
既可用作樓梯扶手,
也可以保證樓梯采光。

三角的漏框造型,
為空間增加了趣味性,
仿佛一個取景框,
當人物出現在框內,
仿佛取景框般,
為人和空間增加互動性。
衛生間

樓梯口正面對著衛生間,
為增加美觀性和私密感,
增加了一道黑色玻璃移門。

衛生間借用了部分主臥空間,
增加了空間,
實現了洗漱區、浴室區、馬桶區,
干濕三分離設計。


馬桶區和浴室區隔斷上增加了一扇磨砂玻璃窗,
透光不透視,
保證光線的同時又保護隱私,
分隔開的區域空間較小
統一采用灰白色,
顯得干凈通透。
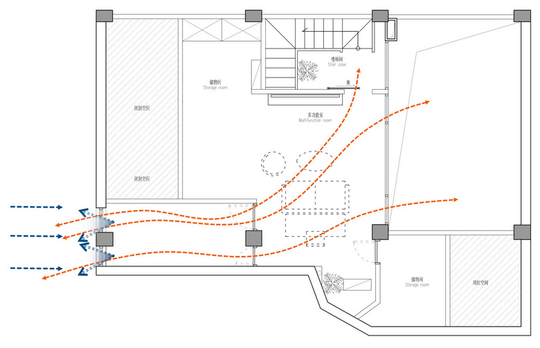
閣樓

閣樓主體區域打造成了多功能區,
一是可以用作娛樂室,
看電影、聽音樂、打游戲一應俱全,
二是可以用作書房,
辦公、閱讀、思考都隨心所欲。

男女主人可以各自在一樓和閣樓辦公,
互不打擾,
獨立專注。

斜面區域暫時預留出來,
一是可以做未來寶寶的玩耍區域,
二是可以定制矮柜用作收納區。


設計師還在閣樓開了兩扇門,
作為采光和通風額的通道,
解決閣樓采光通風差的問題,
也讓一二層空氣形成對流,
提升整屋的舒適感。


每個人都在追求更適合自己的居住環境,
也許戶型不佳,
但只要用心發現和設計,
我們依然可能創造出無數可能性,
也是這些無數可能性,
讓我們的生活充滿希望。
以上就是“奇葩閣樓不知道怎么裝修設計?砸掉數面墻,打造清新自然的環境!”的全部內容,你家也買了閣樓的房子,不妨試試這么設計哦~
個性化定制 · 生活不將就


數據預算由樂蜂裝飾集團歷史交付10萬+業主裝修數據
各個小區的簽單合同數據經過大數據實時分析計算